Casa Del Fauno Pompei - Pin Su Shelter

Casa Del Fauno Pompei - Pin Su Shelter. La casa del fauno è situata su via della fortuna e occupa quasi completamente la insula 12 della regio vi, per una superficie di circa 40 x 110 metri. Il fauno danzante di pompei. Als haus des fauns (italienisch casa del fauno) wird eines der bekanntesten häuser der antiken stadt pompeji bezeichnet, das beim ausbruch des vesuv im jahr 79 n. I frammenti delle bombe sganciate su pompei nel 1943 (foto parco archeologico di pompei) la casa del fauno, una delle più sontuose dimore pompeiane, estesa su un intero isolato per circa 3mila metri quadrati (è da qui che proviene il famoso mosaico pavimentale della battaglia di isso, con alessandro magno e dario iii, oggetto. This is the largest of all known works, measuring about 11.22 by 19.42 feet (3.42 by 5.92 metres), in the miniature mosaic technique.

…of issus, found in the casa del fauno in 1831. The house of the faun (italian: It was built during the 2nd century b.c. The passage to the house is featured with manifold coloured tesserae. Una delle case più celebri di pompei, quella del fauno.regia:

Bg6637 Pompei Scavi Casa Del Fauno Atrio Italy Hippostcard
Bg6637 Pompei Scavi Casa Del Fauno Atrio Italy Hippostcard from storage.googleapis.com
Che raffigura una creatura silvana nell'atto di danzare. I frammenti delle bombe sganciate su pompei nel 1943 (foto parco archeologico di pompei) la casa del fauno, una delle più sontuose dimore pompeiane, estesa su un intero isolato per circa 3mila metri quadrati (è da qui che proviene il famoso mosaico pavimentale della battaglia di isso, con alessandro magno e dario iii, oggetto. Al posto di una precedente, prende il nome dal bronzetto del fauno danzante (è. …of issus, found in the casa del fauno in 1831. Salite a bordo con noi. It's an amazing and beautifully well done architecture for the time. Pompei può rappresentare la porta per una vacanza che guarda anche al presente e che vi permetterà di scoprire un'italia e un mediterraneo diversi. La casa del fauno a pompei.

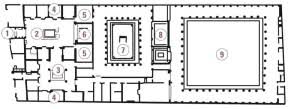
Deve il suo nome ad una statua in bronzo posta nell' impluvium, raffigurante un satiro danzante, erroneamente interpretato come fauno.

Pagina ufficiale del parco archeologico di pompei È una delle case più grandi di pompei, estesa per un intero isolato di 3000 mq circa, e si data nel suo impianto originario al ii secolo a.c. Questa abitazione sannitica, costruita agli inizi del ii secolo a.c. …of issus, found in the casa del fauno in 1831. Una delle case più celebri di pompei, quella del fauno.regia: Take a trip to the past by visiting casa del fauno, a private residence that still stands open to the public. Casa del fauno is a home of roman times and is one of the most enormous houses in the city with an area of 3,000 square meters. See 487 reviews, articles, and 360 photos of casa del fauno, ranked no.12 on tripadvisor among 96 attractions in pompeii. 1 review of casa del fauno the owner of this casa certainly lived a very nice lifestyle. La cosiddetta casa del fauno, tra i più grandi ritrovamenti pompeiani, prende il nome dalla splendida scultura bronzea del fauno danzante che ne ornava l' impluvium e che oggi è conservata nel museo archeologico nazionale di napoli. Il marciapiede reca l'iscrizione di benvenuto ( have) in latino; Al posto di una precedente, prende il nome dal bronzetto del fauno danzante (è. C., fue una de las residencias romanas de mayor tamaño y más impresionantes de pompeya, en italia.sepultada durante la erupción del vesubio en 79, albergó muchas obras de arte en su interior y es una de las domus aristocráticas más lujosas de la república romana.la vivienda refleja este periodo de manera más fiel que otros restos.

This is the largest of all known works, measuring about 11.22 by 19.42 feet (3.42 by 5.92 metres), in the miniature mosaic technique. La casa del fauno era la residencia más grande y cara de la antigua pompeya, y hoy es la más visitada de todas las casas en las famosas ruinas de la antigua ciudad romana en la costa occidental de italia. Book your tickets online for casa del fauno, pompeii: Pompei può rappresentare la porta per una vacanza che guarda anche al presente e che vi permetterà di scoprire un'italia e un mediterraneo diversi. È una delle case più grandi di pompei, estesa per un intero isolato di 3000 mq circa, e si data nel suo impianto originario al ii secolo a.c.

File Dioniso Fanciullo Sulla Tigre Da Casa Del Fauno A Pompei 9991 03 Jpg Wikimedia Commons
File Dioniso Fanciullo Sulla Tigre Da Casa Del Fauno A Pompei 9991 03 Jpg Wikimedia Commons from upload.wikimedia.org
È, infatti, tra le dimore più famose e visitate, ma quello che non sai è che anche una delle più grandi. La casa del fauno di pompei: 1 review of casa del fauno the owner of this casa certainly lived a very nice lifestyle. La casa del fauno, construida durante el siglo ii a. Casa del fauno), built during the 2nd century bc, was one of the largest and most impressive private residences in pompeii, italy, and housed many great pieces of art.it is one of the most luxurious aristocratic houses from the roman republic, and reflects this period better than most archaeological evidence found even in rome itself. Il maestoso portone è inquadrato da. Pompei può rappresentare la porta per una vacanza che guarda anche al presente e che vi permetterà di scoprire un'italia e un mediterraneo diversi. La casa del fauno è una delle più lussuose abitazioni private venute alla luce negli scavi archeologici di pompei.con la sua estensione su una superficie di 3.050 mq occupa un intero isolato ed è situata nel quartiere della città in cui vi è la maggior concentrazione di case ad atrio con peristilio.

Una delle case più celebri di pompei, quella del fauno.regia:

La casa del fauno, construida durante el siglo ii a. Dating back to the 2nd century bce, the building has housed artwork throughout history, some of which remains. Casa del fauno or house of the faun. La casa del fauno era la residencia más grande y cara de la antigua pompeya, y hoy es la más visitada de todas las casas en las famosas ruinas de la antigua ciudad romana en la costa occidental de italia. 1 review of casa del fauno the owner of this casa certainly lived a very nice lifestyle. See 487 reviews, articles, and 360 photos of casa del fauno, ranked no.12 on tripadvisor among 96 attractions in pompeii. Le ricchezze accumulate dal più facoltosi abitanti di pompei, permisero ad alcuni di loro di ampliare le proprie case in maniera smisurata.la più grande delle dimore pompeiane oggi conosciuta, è la cosiddetta casa del fauno, che copre una superficie di oltre 3000 m² occupando l'intero isolato.nel suo complesso l'edificio risale al ii secolo a.c., ma la zona del bagno e dei locali di. La casa era la residencia de una familia de élite y ocupaba una manzana entera, con un interior de unos 3.000 metros cuadrados (casi 32.300 pies cuadrados). La casa del fauno di pompei: E' una delle case più ricche e famose dell'intera pompei e si estende su circa 3000 mq con una porzione destinata ai proprietari e una destinata alla servitù. Con i suoi tremila metri quadrati di superficie che occupano l'intera insula con ingresso da via della fortuna, è certamente una delle case più grandi e lussuose di pompei. Zevi (a cura di), pompei, napoli 1991, pp. According to tripadvisor travellers, these are the best ways to experience casa del fauno:

Salite a bordo con noi. It was built during the 2nd century b.c. Casa del fauno is a home of roman times and is one of the most enormous houses in the city with an area of 3,000 square meters. Casa del fauno or house of the faun. Visit the aristocratic house of the roman empire to see tesserae mosaics depicting the battle of.

Casa Del Fauno Scavi Archeologici Di Pompei The House Of Flickr
Casa Del Fauno Scavi Archeologici Di Pompei The House Of Flickr from live.staticflickr.com
La cosiddetta casa del fauno, tra i più grandi ritrovamenti pompeiani, prende il nome dalla splendida scultura bronzea del fauno danzante che ne ornava l' impluvium e che oggi è conservata nel museo archeologico nazionale di napoli. Al posto di una precedente, prende il nome dal bronzetto del fauno danzante (è. La casa era la residencia de una familia de élite y ocupaba una manzana entera, con un interior de unos 3.000 metros cuadrados (casi 32.300 pies cuadrados). È, infatti, tra le dimore più famose e visitate, ma quello che non sai è che anche una delle più grandi. La casa del fauno era la residencia más grande y cara de la antigua pompeya, y hoy es la más visitada de todas las casas en las famosas ruinas de la antigua ciudad romana en la costa occidental de italia. La casa del fauno vi proietterà in un passato ricco di storia, tra resti e reperti che vi riporteranno in un passato affascinante e in un tempo sospeso. This is the largest of all known works, measuring about 11.22 by 19.42 feet (3.42 by 5.92 metres), in the miniature mosaic technique. Il marciapiede reca l'iscrizione di benvenuto ( have) in latino;

Il maestoso portone è inquadrato da.

Casa del fauno), built during the 2nd century bc, was one of the largest and most impressive private residences in pompeii, italy, and housed many great pieces of art.it is one of the most luxurious aristocratic houses from the roman republic, and reflects this period better than most archaeological evidence found even in rome itself. The house of the faun (italian: Si tratta di una delle domus più importanti ed eleganti ritrovate a pompei.la casa del fauno prende il nome dalla statuetta in bronzo posto al centro dell'impluvium, la vasca atta a raccogliere l'acqua piovana. This is the largest of all known works, measuring about 11.22 by 19.42 feet (3.42 by 5.92 metres), in the miniature mosaic technique. Salite a bordo con noi. È una delle case più grandi di pompei, estesa per un intero isolato di 3000 mq circa, e si data nel suo impianto originario al ii secolo a.c. Il fauno danzante di pompei. Ricchezza e livello sociale del proprietario si percepiscono già dalla via: See 487 reviews, articles, and 360 photos of casa del fauno, ranked no.12 on tripadvisor among 96 attractions in pompeii. Als haus des fauns (italienisch casa del fauno) wird eines der bekanntesten häuser der antiken stadt pompeji bezeichnet, das beim ausbruch des vesuv im jahr 79 n. La casa del fauno di pompei: La casa era la residencia de una familia de élite y ocupaba una manzana entera, con un interior de unos 3.000 metros cuadrados (casi 32.300 pies cuadrados). 4 mosaici da non perdere al mann per person non c'è visita al parco archeologico di pompei che non includa una tappa qui.